commercial & residential sales & lettings
with up to 7 private parking bays
Lewes – BN7 1RL
rent
Sorry it’s been let! (Feb 2018)
viewings
Strictly by appointment only
Email: rbw@adroproperties.com
Tel: +44 (0)7895 486 099
Positioned on the north side of Western Road, on a continuation of the High Street, in the County town of Lewes, East Sussex. The junction of St. Annes Crescent is immediately to the front. There is easy access to the A27 leading to coastal towns, as well as the A265 heading directly north.
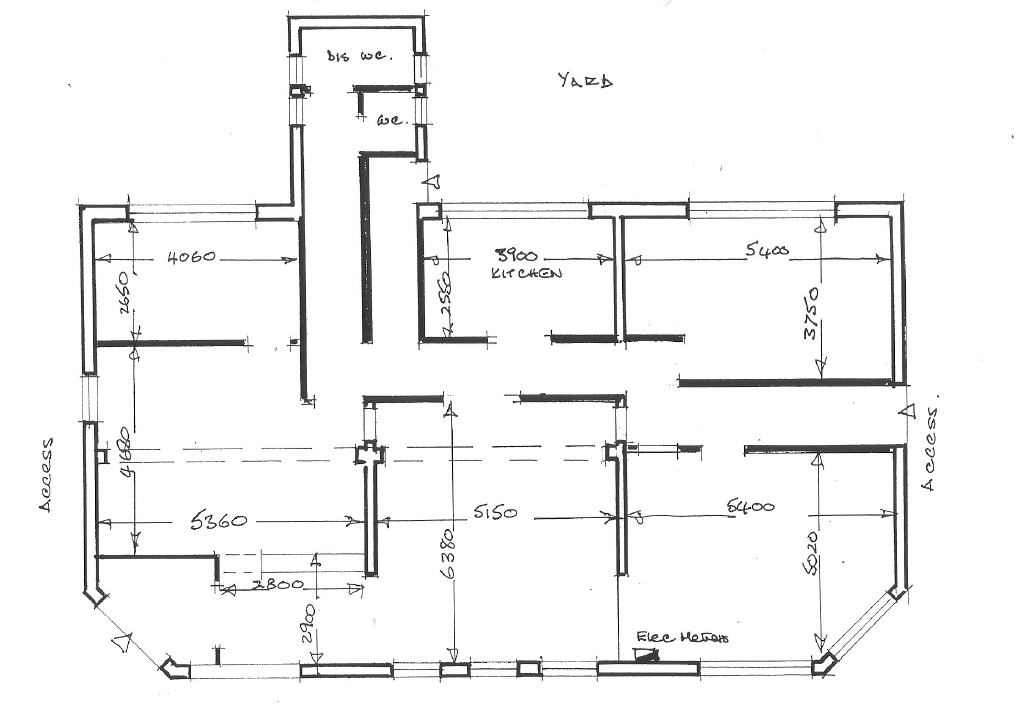
The premises can be accessed by 2 main entrances, one on the south westerly splay and the other from the eastern side featuring double entry doors and door entry system. An additional service door at rear also provides access to the car park.

Front office [1] dual aspect
Dimensions: 5.0m (16ft) x 5.2m (17ft) = 26.0 sq m (281 sq ft)
Rear office [2] L shaped with window to rear
Dimensions: 4.3m (14ft) x 3.5m (11ft) plus 1.4m (4ft) x 2.5m (ft) =18.5 sq m (198 sq ft)
Kitchen area fitted with stainless steel sink unit, Valiant gas fired boiler for central heating and hot water, work top, space for fridge and window to rear
Dimensions: 2.5m (8ft) x 3.9m (12.9ft) = 9.8 sq m (105 sq ft)
There is a walkway leading to a rear door to outside with a further corridor leading to 2 separate cloakrooms both fitted with low level WC and wash band basin and with one fitted for disabled persons.
Front office [3] L shaped
Dimensions: 6.5m (21ft) x 5.5m (18ft) plus 1.2m (4ft) x 4.3m (14ft) = 41.0 sq m (448 sq ft)
Front office [4]
Dimensions: 6.53m (21ft) x 5.1m (16ft) = 33.3 sq m (360 sq ft)
Meeting room [5]
Dimensions: 4.37m (14ft) x 2.76m (9ft) =12.1 sq m (128 sq ft)
Car parking provided to the rear with space for approximately 7 vehicles
* Total overall usable area including kitchen: 140.7 sq m (1520 sq ft) *
Rateable Value: £17,500
New 5 year lease available on normal full repairing and insuring basis.
Rental offers in region of: (Now let Feb.2018)
Strictly by appointment through Adro Properties
Email: rbw@adroproperties.com
Tel: +44 (0)7895 486 099
Disclaimer:
Although every effort has been made to ensure the accuracy of particulars given, no responsibility is assumed for their accuracy and they are not intended to form the basis of any contract nor are they to be relied on as statements or representations of fact. Premises are offered subject to contract and availability.